AVAILABLE NOW
TO LET
NEW WAREHOUSE / INDUSTRIAL UNIT
47,260 SQ FT (4,390 SQ M)
GRAFTON WAY
WEST HAM INDUSTRIAL ESTATE
BASINGSTOKE RG22 6HY

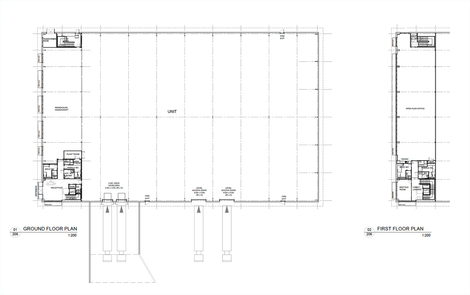
DESCRIPTION
H47 Grafton Way is a newly completed warehouse / logistics facility designed with environmental sustainability at its core. The building features a 10-metre haunch height, two level access doors, and two dock leveller doors. The site includes 56 parking spaces and a secure 40-metre deep yard.


DESCRIPTION
H47 Grafton Way is a newly completed warehouse / logistics facility designed with environmental sustainability at its core. The building features a 10-metre haunch height, two level access doors, and two dock leveller doors. The site includes 56 parking spaces and a secure 40-metre deep yard.





























ACCOMMODATION
| SQ FT | SQ M | |
|---|---|---|
| Ground Floor Warehouse | 41,287.36 | 3,835.69 |
| First Floor Offices | 5,972.72 | 554.88 |
| TOTAL | 47,260.08 | 4,390.57 |


LOCATION
Basingstoke is a major centre for commerce and industry with a borough population of approximately 185,000. The town is 45 miles to the southwest of London adjacent to Junctions 6 & 7 of the M3 motorway. There is also a frequent rail service to London Waterloo, timetabled at 45 minutes.
Grafton Way is situated to the west of Basingstoke with access directly from the Leisure Park roundabout, which itself is only a few minutes’ drive from the ring road. It is therefore easily accessible to both junctions 6 & 7 of the M3 motorway and approximately 1½ miles from the town centre and station.












